|
|
|
... werden nach intensiven Gesprächen erstellt. Hier können erste Lösungen erarbeitet werden.
|
|
|
|
|
|
Erste Grundrissentwürfe
|
Erste Ansichtsskizzen
|
|
|
|
Wenn alle Details geklärt sind wird dann eine detaillierte Planung mit genauen Maßangaben erstellt. Zu diesem Zeitpunkt können noch Details abgeklärt werden.
|
|
|
|
|
|
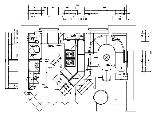
Grundriss mit exakten Maßen
|
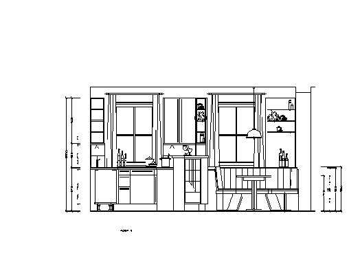
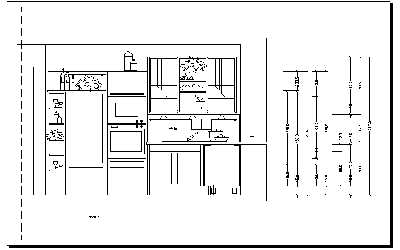
Wandansicht mit exakten Maßen
|
Wandansicht mit exakten Maßen.
|
|
|
Nachdem alle Details besprochen und die Planung komplett ausgearbeitet worden ist, erstellen wir neben einem ausführlichen Angebot noch eine interaktive Präsentation, anhand derer Sie Ihr künftiges Wohnprojekt durchwandern können.
|
|
|
|
|
|
Ansicht von der Treppe aus
|
Ansicht von der Ofenbank aus
|
Ansicht vom Eingang aus
|
|
 |
 |
 |